Loading... Loading...

Birre House

LOCALIZATION

Birre, Cascais, Portugal

TYPE

Single-family home, Renovation

YEAR

2023

AREA

100 m2

Renovation project of the interiors of a house, located in the Birre area, near Cascais, designed by architect Nuno Leónidas in 1985.

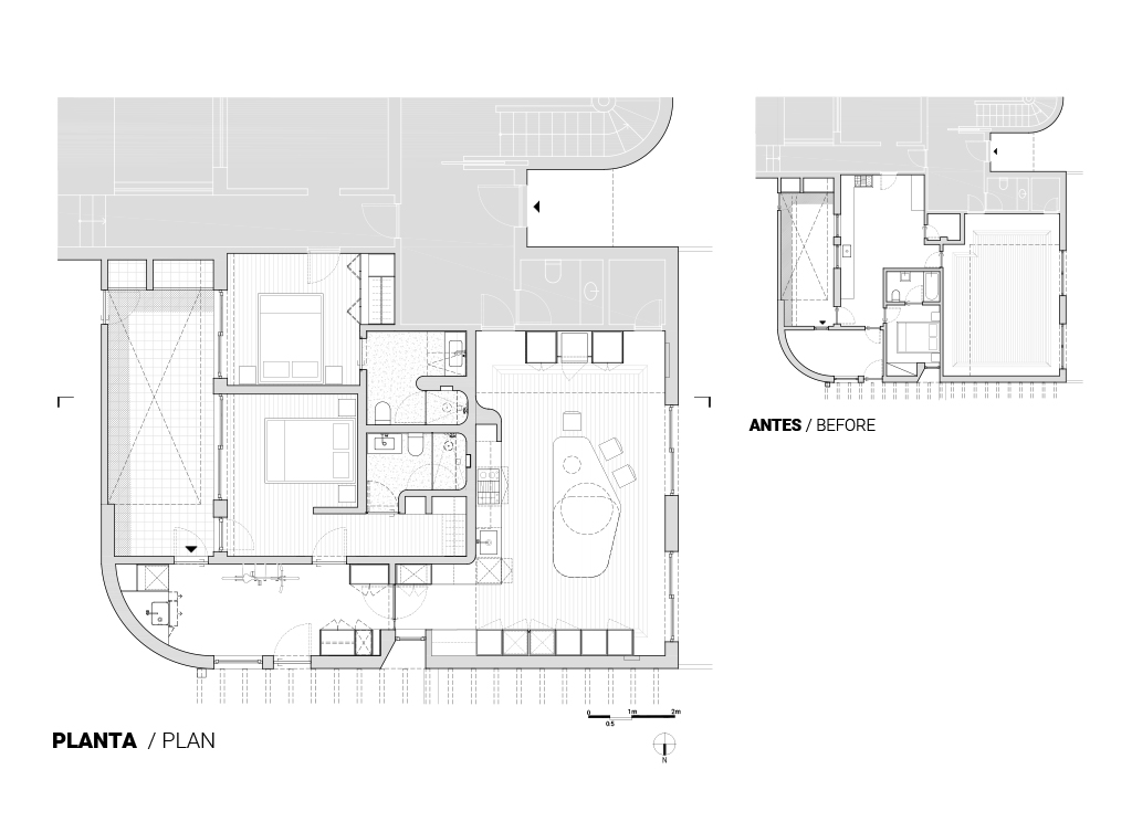
The main objective of this project was the spatial reorganization and renovation of the kitchen, laundry, and adjoining bedrooms without altering the existing structure of the building, in order to create more spacious compartments with optimal light penetration.

A crucial aspect was to organize this space into two categories – common areas (kitchen, laundry, patio) and private spaces (two en suite bedrooms) – creating clear circulation between the compartments in each group and properly organized intersections.

In the newly designed spaces, we chose to integrate curved elements, paying homage to the elegant form of the house’s volumetrics. Mixing curved and cubic architectural geometries offers distinct design approach of unique aesthetics. The wavy geometry brings a dynamism and movement to the space, making it stronger and, at the same time, more functional.

We proposed a minimalist kitchen with an island that represents a distinctive, multifunctional, and decorative element, resting on top of the existing wooden floor. 

The main objective of the design proposed for the new bathrooms was to create a comfortable space. This was achieved through the use of soft colors that complement the aforementioned curved elements introduced in the interiors. Additionally, indirect lighting, along with large embedded mirrors, helped to emphasize the very elegant curvilinear shape of the walls, while at the same time providing a lot of brightness to the space.

As a result, the project represents a contemporary reinterpretation of the modernist architecture, with its own identity, focused on functionality and comfort.

Share it

Facebook

Twitter

Google+

LinkedIn

Pinterest